Cover image for RCC are delighted to have attained planning and listed building consent for the residential use of this site

Originally constructed as a Temperance Public Room in 1865, this Grade II listed building has experienced a number of other uses throughout its history. These include as a library, doctors surgery, architect’s office and as the headquarters for the Scout Group who occupied various floors of the building. The scout group occupied the hall from the late 1950’s until they sold the site in 2024 when our clients had bought it.

The scout group had submitted a pre-application enquiry to the council to convert the building to residential use but this received a negative response due to the loss of the community use of the building and on heritage grounds.

RCC were instructed to act on behalf of the new owners to pursue the residential conversion and with a a team of architects, heritage professionals and ecologists we brought together a detailed and robust formal planning and listed building submission setting out why planning and listed building consent should be granted.  

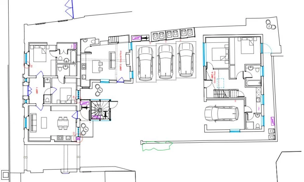
There were extensive negotiations and discussions with the council concerning the loss of the community use and some detailed design/heritage issues but eventually we have attained planning permission for the buildings to be converted to create four new dwellings.  This was a great result. 

Gallery